Housing information 物 件 情 報

近鉄 新庄物件番号:M 149

近鉄 新庄物件番号:M 149

屋根、外壁、浴室、その他一部リフォーム済
庭は人工芝で整備されておりバーベキューが楽しめるようになっています。

住宅概要House data

販売価格
2000万円
所在地
葛城市 新庄 432
交通
近鉄御所線 近鉄新庄駅 徒歩19分
土地面積
279.31㎡
建ペイ率
80%
容積率
200%
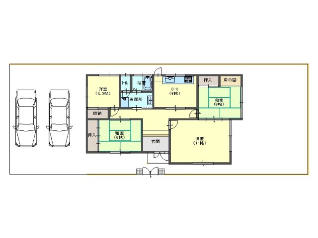
延床面積
83.22㎡
地域
第二種中高層住居専用
建築年
昭和53年5月
構造
木造平家建
設備
公共下水道, 都市ガス  オール電化
駐車場
2台可能