Housing information 物 件 情 報

近鉄・JR天理線 天理物件番号:U 150

近鉄・JR天理線 天理物件番号:U 150

別途山林7,267㎡が売買対象です。

住宅概要House data

販売価格
5800万円
所在地
天理市 福住町5094
交通
近鉄・JR天理線 天理駅 バス24分
バス停「国道福住」徒歩19分
車の場合約20分
土地面積
1850㎡
建ペイ率
60%
容積率
200%
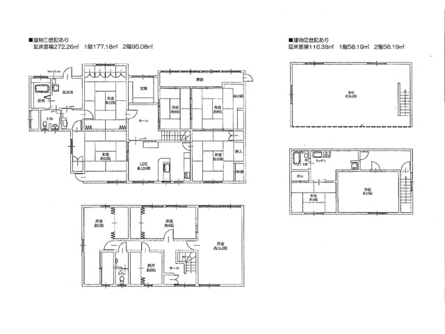
延床面積
272.26㎡
地域
市街化調整区域
建築年
平成12年12月
構造
木造2階建
設備
浄化槽, プロパン  
駐車場
あり